Winthrop Vista Residence







Location: Winthrop, WA
Area: 3,600 SF
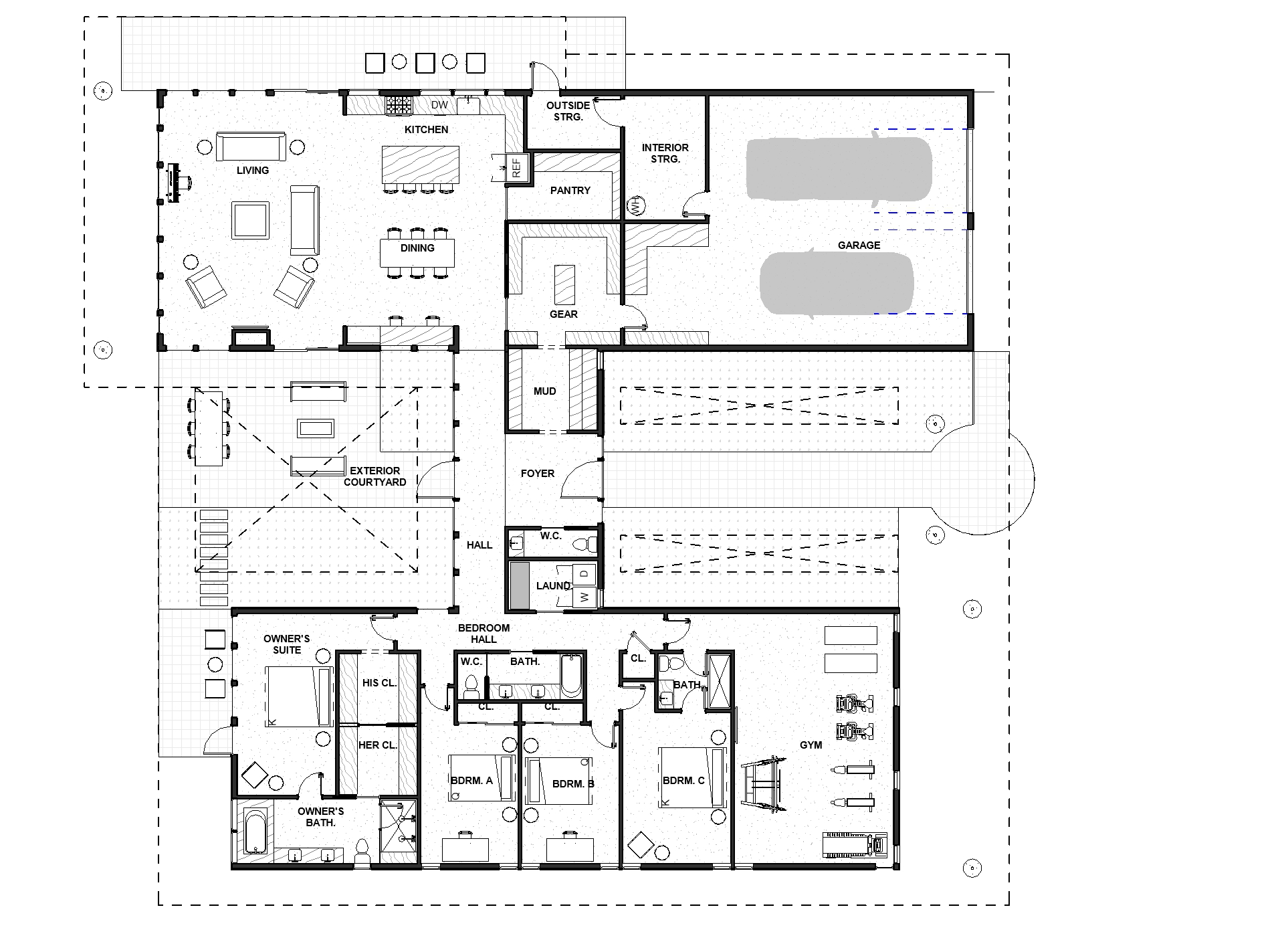
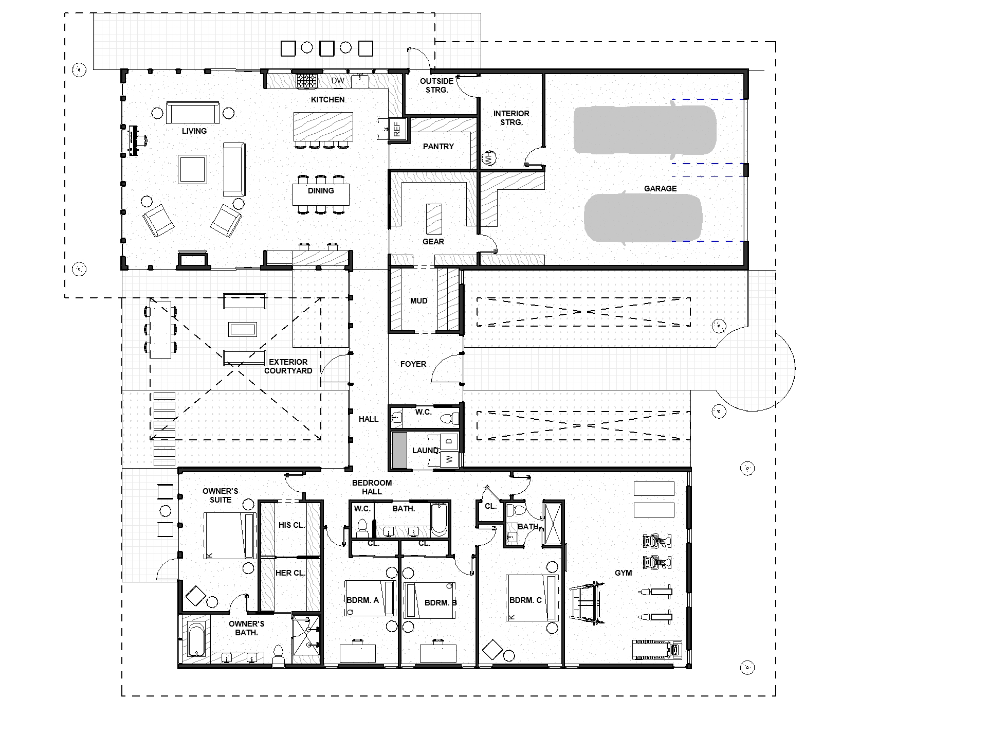
This modern custom residence is designed as a direct response to its site in Washington State’s Methow Valley, where expansive landscapes, intense seasonal conditions, and long-range mountain views shape the way architecture must perform. Positioned to capture sweeping 270-degree views of the North Cascades and Mount Gardner, the home balances openness and protection through a carefully considered H-shaped plan.
As custom home architects in Washington State, our approach begins with listening to the land. This site offered extraordinary views across the Methow Valley but is also exposed to strong up-valley winds, heavy winter snow, and hot, dry summers. Rather than imposing a singular form, the house is split into two primary wings connected by a central living volume. This H-shaped configuration creates a series of protected courtyards that act as sheltered outdoor rooms, shielding the home from prevailing winds while providing shade during peak summer months.
The courtyards are a critical component of the design, allowing for comfortable outdoor living even in a challenging climate. Framed by the building mass and roof overhangs, these spaces deter wind, reduce solar heat gain, and extend daily living outward without sacrificing comfort. This strategy reflects our experience designing custom homes throughout rural and mountain regions of Washington.
The home is carefully angled toward Mount Gardner and the most prominent valley views, ensuring that primary living spaces feel deeply connected to the surrounding landscape. At the same time, this orientation limits direct sightlines to neighboring properties, maintaining privacy while preserving openness. Floor-to-ceiling glazing and clerestory windows frame the terrain and bring in abundant natural light, while more solid wall planes are used strategically where privacy and solar control are required.
A modern shed roof defines the architectural expression of the home while responding directly to regional conditions. Its simple slope efficiently sheds snow during winter, reducing accumulation and long-term maintenance. Generous roof overhangs protect the building envelope, shade glazing in summer, and create covered exterior zones that can be used throughout the year. These elements are essential when designing for the Methow Valley’s wide temperature swings and heavy snowfall.
Inside, the plan is organized to support both gathering and retreat. Public living spaces are oriented toward the views and courtyards, while private bedrooms are housed in a quieter wing of the home. This zoning allows for flexibility, long-term livability, and a clear relationship between interior spaces and the outdoors.
This custom residence exemplifies our approach to modern residential architecture in Washington State: climate-responsive, site-driven, and deeply rooted in place. By designing with wind, sun, snow, and views in mind, the home becomes not just a structure on the land, but an integrated part of the Methow Valley landscape.
