Columbia Valley View Residence




Location: Wenatchee, WA
Area: 2,600 SF
Set above the Wenatchee Valley on a sloped site with sweeping exposure, this custom home is conceived as a series of deliberate moments that engage a rare 180-degree panorama — stretching from the confluence of the Columbia and Wenatchee Rivers, across the Stuart Range of the North Cascades, and south toward the summit of Mission Ridge.
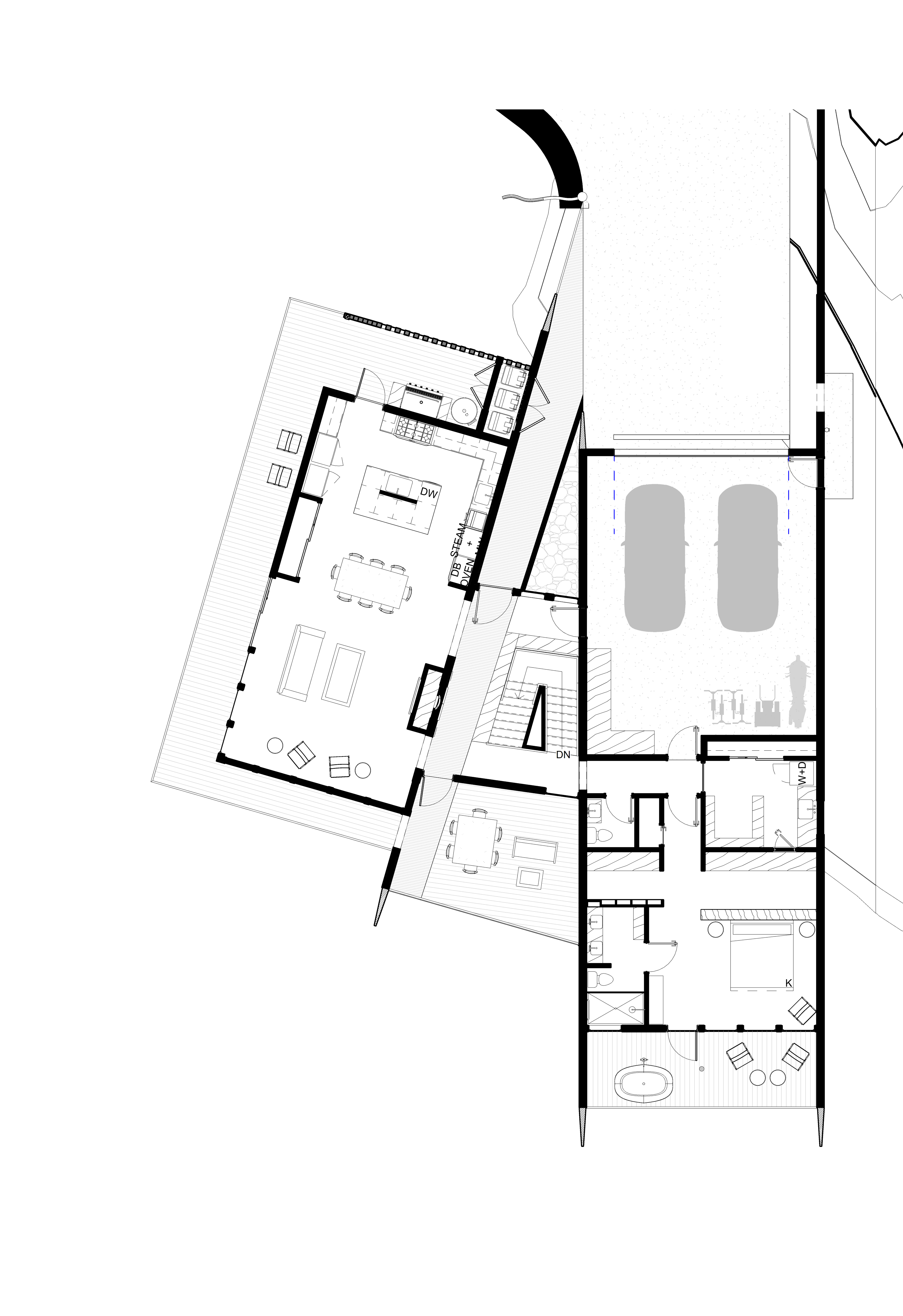
Rather than treating the view as a singular backdrop, the design organizes the home around a sequence of framed outlooks that reveal the landscape in distinct, intentional ways. A series of vertical “fin walls” extend beyond the primary building envelope to choreograph how each space connects to its surroundings. These architectural elements act as both spatial thresholds and visual instruments — capturing long views down-valley from the main living areas, isolating mountain silhouettes from the upper-level retreat, and orienting outdoor terraces toward the shifting light at the river confluence.
As occupants move through the home, the experience becomes one of gradual discovery. Circulation spaces compress and release to align with targeted sightlines, allowing framed vistas to unfold in response to programmatic shifts — from the open kitchen and great room to more intimate bedrooms and workspaces. In this way, the home’s interior organization is driven not by geometry alone, but by the unique character of the surrounding terrain.
These fin walls also perform an essential environmental role. In Wenatchee’s hot, dry summers, solar exposure from the south and west can be intense, while prevailing winds funnel up-valley with surprising force. The projecting wall planes are carefully oriented to temper these conditions — providing passive shading during peak sun hours and buffering outdoor living areas from seasonal wind patterns. Deep roof overhangs and recessed glazing further support this strategy, improving thermal comfort while preserving uninterrupted outward views.
Together, these moves transform the home into a calibrated lens on its environment — one that balances openness with protection, and panoramic access with moments of enclosure. The result is a residence that not only captures the full breadth of the Central Washington landscape, but enhances how it is experienced throughout the rhythms of daily life.
